TRITON 19" jednodílný rozvaděč 12U/400mm, odnímatelné boční kryty
Nástěnný rozvaděč RUA
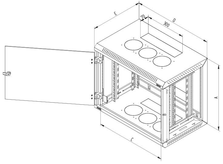
Jednodílný svařovaný rozvaděč s odnímatelnými bočnicemi. IP30, nosnost 30 kg.
| Příbaly: | |
| Klíč - přední dveře | 2x |
| Vrut 6x50 | 4x |
| Podložka 6,6 | 4x |
| Hmoždinka 10 | 4x |
| Plovoucí matice M6 | 8x |
| Protiprachová záslepka | 1x |
| Šroub M6x10 | 8x |
| Plastová podložka | 8x |
| Rámeček plastový 300x70 | 1x |
Materiál: bezpečnostní kalené sklo tl. 4 mm, ocelový plech
| Specifikace: | |
| Výška (mm) | 635 |
| Šířka (mm) | 600 |
| Hloubka (mm) | 395 |
| Hmotnost (netto v kg) | 20,3 |
| Max. doporučené zatížení (kg) | 30 |
Vysoká pevnost konstrukce
Rozvaděč má robustní svařovanou konstrukci. Vysoká kvalita zpracování a nejnovější technologie zajišťují skvělý vzhled rozvaděče a nosnost 30 kg.
Flexibilní otevírání dveří
Vlastní systém pantů umožňuje otvírání dveří pod úhlem téměř 180°. Dveře lze snadno demontovat.
Zámek na dveřích
Umožňuje snadný a rychlý přístup do rozvaděče.
Nastavitelné vertikální lišty
Dva páry 19“ vertikálních lišt jsou plynule nastavitelné v libovolné hloubce rozvaděče. To usnadňuje montáž zařízení i organizaci propojovacích kabelů.
Vylamovací záslepky
V horní, spodní a zadní části rozvaděče jsou připraveny kabelové vstupy kryté vylamovacími záslepkami. Součástí příbalu je plastový rámeček a záslepka s kartáčovým těsněním pro utěsnění vstupu proti prachu.
Dveře
Dveře rozvaděče jsou standardně celoskleněné, ale na požádání mohou být i celoplechové nebo s perforací.
Odnímatelné bočnice
Odnímatelné bočnice umožňují snadný přístup k nainstalovaným zařízením z boční strany. Ke skeletu jsou uchyceny zámky, ve standardní verzi se stejným klíčem jako má zámek předních dveří.
Ventilace
RUA má šest vylamovacích záslepek pro montáž chladících jednotek RAx-CH-X2x-X1, nebo ventilátorů RAX-CH-X07-X9 (až tři v horní a tři ve spodní části rozvaděče). Rozvaděč RUA nyní umožňuje instalaci zařízení, kterou dříve v nástěnných rozvaděčích nebylo možné uchladit a bylo nutné je instalovat do stojanových rozvaděčů.








